[PR]上記の広告は3ヶ月以上新規記事投稿のないブログに表示されています。新しい記事を書く事で広告が消えます。
今年の夏に購入してから早3ヶ月。
このたびようやく1回目の燃費計測を迎えることができました。
使用頻度としては、週に約6日は通勤のために最寄りのJR外房線・鎌取駅まで約5分×往復分がメインのほか、今回はイレギュラーメニューとして、マフラー塗装後の乾燥走行が1時間ほど追加されました。
通勤使用時は朝7時半頃と夜22時頃のエンジンが冷めた状態からスタートしてたった5分の走行なので、恐らく燃費は悪いと思います。
マフラー塗装後の乾燥走行は約30分ずつの連続走行なので多分標準的な燃費でしょう。
で、今回の燃費結果は・・・・・
21.12km/1リッター
良いかどうかわかりませんが、乗っていてそんなに悪いような気はしていません。
というのも、前回のホンダ・スクーピーが壊れたあと、妻の実家にあったヤマハの2スト(原付)を借りていたのですが、毎度乗るたびにガソリンメーターの針がみるみる下がっていきガソリンの減りっぷりを常時体感していたので、それに比べると圧倒的に燃費が良いです。
そのヤマハの2スト時代は、だいたい週に1回くらい給油していました。
ちなみに、アディバ・ハイパーファイブのガソリンメーターは、メーターの針が徐々に下がるというよりも、残り1リッターを下回ったくらいのところから針が下がり始めてくるような感じなので、1度ガソリンメーターの針が動き始めるとちょっと焦ります(汗)。
しばらく(飽きるまで)は燃費計測を続けて行こうと思います。
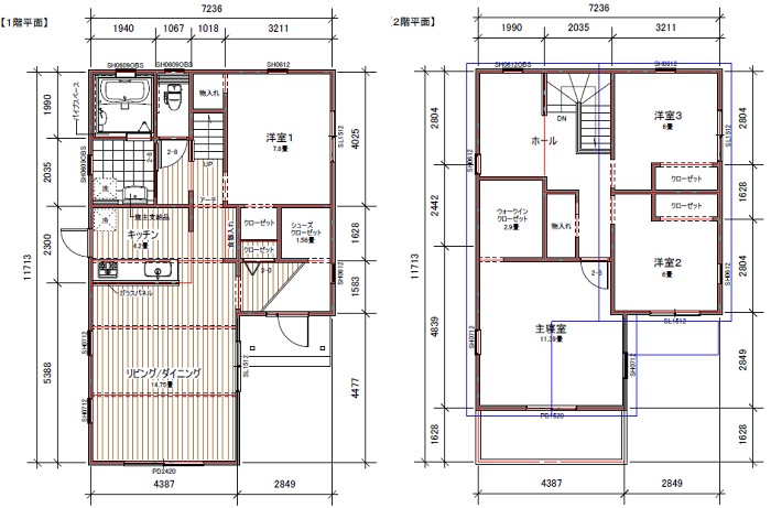
工房アヤで標準プランとして用意している間取りは決して悪くはないのですが、私が購入する縦長の土地にはまったく合わないので一応自分で下書きした間取図に合わせてプランをおこして貰いました。
工房アヤに限らず、アーキピュア(愛楽ビルダーズ研究会)やセルコホーム・東急ホームズも自由設計には応じてくれるので、予算と希望に近いハウスメーカーで相談すると良いと思います。
土地が南西と北西に面した南北に長い角地で、ちょうど東側隣地に建物が建つ予定のため、マスト条件の『長方形寸胴型』よりも採光を考慮した『L字型』に変更しました。
土地の形状が東西に向かって幅広なら各ハウスメーカーが用意する標準プランで十分ですが、土地が特殊な形をしていると、その土地と隣地建物などの周辺環境に合わせたプランのほうが良い場合もあり、ウチはまさしくこのパターンになってしまいました。
工房アヤさんでは、標準的な寸胴タイプを手掛ける事がほとんどだそうなので、今回のL字型を実現するために構造計算などでかなり時間を掛けて頂きました。
一応、長期優良住宅の認可がおりた建物なので、普通の住宅よりも信頼感がありますよね。
良く言えば国のお墨付き住宅みたいな・・・。言い過ぎか(笑)
で、見る前にお伝えしておきますが、この間取りは1階にこだわって作図したため、2階はオマケ的要素が強いです。
また、この図面は最終プランとは数か所異なります。予めご勘弁下さいませ。
取りあえず図面を見てお伝えできることだけピックアップします。
◎こだわりポイントその1
・カウンターキッチン
ま、普通ですかね(笑)
◎こだわりポイントその2
・ガスコンロ全面にガラスパネルを設置
壁も吊戸棚も無くして、ショールームみたいに開放的な造りにしました。
◎こだわりポイントその3
・広いウォークイン・シューズクローゼット
※妻のかねてからの要望なので無視できず・・・。
靴とベビーカーを入れちゃいます。
◎こだわりポイントその4
・1階にキッチン・LD・浴室・洗面・トイレなどの水回りを配置
毎日階段を上がって2階で暮らすのが面倒なので。
というか、歳とったり、足を悪くしても住めるので。
◎こだわりポイントその5
・1階に洋室1室
子供の遊び兼昼寝用(50%)、室内干し用(30%)、私の趣味用(10%)、その他用(10%)、ご隠居後の寝室用など、多目的ルームと言えます。
※私の趣味の割合がその他と同じ10%というのが泣けてきます。
◎こだわりポイントその6
・キッチンに勝手口
これも普通か(笑)
◎こだわりポイントその7
・キッチン横に食器&食品用パントリー
ウチはいつも食品ストックが大量にあるので必須アイテムでした。
多分、乾燥パスタは常時20kg以上はあるかと・・・。
◎こだわりポイントその8
・1階LDにメープルの無垢材フローリング
図面上の縦線が引いてあるエリア全てに無垢材を入れます。
縦線以外の床は、工房アヤの標準品『ラミネートフローリング』です。
普通のベニヤ板で造られたフローリング床材はどんどん痛むし、20年くらいで張り替えが必要だし、健康にも良くないので、むしろ『ラミネートフローリング』はちょっと魅力的でした。
標準仕様については工房アヤのホームページに↓
http://www.koboaya.co.jp/rainbow/980.html
◎こだわりポイントその10
・1階も2階も同じ位置に窓ガラスを配置
これはただの外観上のデザインなのですが、機能的には『耐震性が高い』です。
◎こだわりポイントその11
・2階にウォークイン・クローゼット2.9帖
◎こだわりポイントその12
・2階にホールを完備
今のところ何に使うのかは不明・・・。
一応北側窓に面してトイレを新設できるようフローリングの下に給排水管を完備させておきます。
◎こだわりポイントその13
・洋室2と3のクローゼットを撤廃して約7帖に変更
IKEA(イケア)でカワイイ収納家具が売っていたので、子供の成長や趣味嗜好に合わせて買い替えていく予定です。
◎こだわりポイントその14
・広い主寝室(約11.3帖)
私が使わせてもらえるかどうかはさておき、一応主寝室は広いほうが良いかと・・・。
◎こだわりポイントその15
・とにかく収納が豊富
庭に倉庫を置くのでも良いのですが、多少でも砂っぽくなるのが嫌なので基本的にすべて室内に置きたいんです。
別件ですが、工房アヤさんのホームページがリニューアルしてました。
以前のと違って明るくなり、画像もキレイになったのでスッゴク良い雰囲気です。
http://www.koboaya.co.jp/
『輸入住宅ってどうなの?』って思っている人もまだまだ多いと思うけど、普段から日本のハウスメーカーや工務店が建てた在来工法の新築や中古の戸建を見ている私から言わせてもらうと『在来工法って不安・・・』と思っているので、少なくとも『輸入住宅=不安・安物・欠陥』というイメージは本質とズレてると思います。
私は建物の専門家ではありませんが、特に最近の建て売り住宅は外観・内装・仕上がり・雰囲気・建て付けのどれを見てもとても不安を感じます。
たぶん、仕事柄色んな建物を見ているのでパッと見でわかるようになってしまったと思うのですが、三井ホームやミサワホーム・積水ハウス・大和ハウスなどの大手が建てた戸建住宅と、(安価なイメージがウリ?の)CMをやっている戸建メーカーや地場の工務店が建てた戸建住宅は、明らかに仕上がりに差があります。
もし私の予算にもっとゆとりがあって、輸入住宅にこだわらずに国産デザインの家を建てるのであれば、あと少し奮発して絶対に大手に依頼するでしょう。
先日、浦安の住宅展示場がリニューアルしてヤオコーの隣地にオープンしたのを見に行きましたが、私は敷地内に建てられた各社の真新しいモデルハウスの外観だけを見て、どこのハウスメーカーのモデルハウスなのかを全て当てることができました。
『見た目』だけを重視するわけではありませんが、『モデルハウス』は言い換えると『各メーカーの総力を注いだ最高傑作』です。
つまり、外観を見ただけでも、そのハウスメーカーの力量が推し量れてしまうということは、『外観=力量』という方程式はあながち間違いではないと思います。
もちろん、中身がすっごい良いのに、デザイナーのセンスが悪くてパッとしない外観になっちゃているメーカーもありますが、一般のお客さんには判断が難しいのが実情でしょう。
そこで、これから家を建てる(又は家を買う)人に是非知っておいて欲しいことがあります。
『CMやっている=安心』という根拠のない(日本人的な)判断は真っ先に取り下げて、『自分と家族は家に何を求めるのか?家から何を得たいのか?』という基準に照らし合わせながらハウスメーカー選びをしてみて下さい。
ハウスメーカーや工務店の話し(プレゼン)を聞いたあと、その度に基本に立ち返ることで、本来求めているライフスタイルや思い描いていた未来がそこにあるのかどうか、自分と家族の求めているものが浮き彫りになってくるのではないでしょうか。
さっそく昨日、マフラーを取り外して耐熱スプレーでまたシルバー1色に染め直ししました。
前回、塗装を薄く塗ってしまったためにすぐに錆が出始めてしまったので、今回はその失敗を生かし、厚塗りに着手。
マフラーを取り外してみると、意外や意外、エンジン本体取り付け部に最も近いパイプ部分の約7cmほどの範囲に直径1mm程度の錆が50か所くらいあって、既に塗装が剥がれちゃってました。
見えない部分なので、結構驚きました。
一応、雑巾で錆と浮いてしまった塗装をふき取ってから塗装を開始。
今回は厚塗りが基本なので、全体的に3回以上スプレーしました。
あまりにも厚塗りだったので塗料が液ダレしてましたが、そこは(鬼の心で)無視して厚塗りを強行。
で、塗装後(未乾燥でしたが)無事取付完了。
本来はここから約1時間くらい放置して乾燥させるそうなのですが、取付が終わったのが夕方16時半頃で既に暗がりだったので、自然乾燥の工程は省略して加熱乾燥のために即出発しました。
走行して約30分、マフラーの状態がチョット気になったので見てみました。
ハハハハ・・・・有り得ない・・・・(驚)。
塗装した部分がすっごいたくさんバブリー(気泡状)になってるし・・・。
※原因は厚塗りでしょう。
ということで、耐熱スプレーによるマフラー塗装コーティング作戦第2弾は、『厚塗り』が原因で大失敗という結末に。
恐らく最初から『薄塗りを5回に分けて作戦』を決行していれば成功への近道だったような気がします。
また後日、塗装を剥がして再塗装ですね。次回は『薄塗り』で!
以前、マフラーの錆の進行を食い止めるために、マフラーを取り外して耐熱スプレーでシルバーに塗り替えたのですが、実は最近、うっすらと錆が表面に出てきちゃいました。
原因として考えられるのは、恐らく塗装の薄さだと思います。
なぜ薄く塗ってしまったのかというと、あの時、取り外したマフラー本体を左手で持ちながら右手に持ったスプレーで塗装していたので、塗っているうちにマフラーの重さで左手が痛くなってきちゃって、『あぁ~この作業を早く終わらせたい・・・』と思っちゃいまして・・・。
で、『薄塗り』になってしまったというのが原因と結果です。
まだスプレーのインクは結構残っているので、2回目はガッツリと塗装しようと思います。
っていうか、インクが残るような塗り方って、そもそもまずかったのかも知れません・・・。
一般的な輸入住宅では、窓ガラスを2重ガラス(複層ガラス/ペアガラス)にしていますが、工房アヤで建てるウチの輸入住宅の場合は、長期優良住宅仕様なのでペアガラス自体が『Low-E』と呼ばれる遮熱仕様の窓を採用する予定です。
ちなみに、2重ガラスと言っても、何種類かあるそうで、とりあえず思いつくままに列挙してみますと
・ガラスが2重になっている普通の(ペアガラス)サッシュ
・2重ガラスの内側に乾燥空気を入れたサッシュ
・2重ガラスの内側が真空になっているサッシュ
(スペーシアなど)
・2重ガラスの内側にガスを注入したサッシュ
(工房アヤ虹の家ではアルゴンガス入りも用意してます)
・Low-Eガラスを採用した(ペアガラス仕様の)サッシュ
※『2重サッシ』と呼ばれているサッシは、窓が屋外側と室内側に1セットずつ(合計2窓)配置されているサッシです。
窓が2重なので、防音性能や保温効果が格段に向上します。費用は多分10万円前後でしょうが、効果的なエコ商品なので、マンションや戸建てに住んでいる人でも気軽にできるオススメのエコ対策です。
で、アルゴンガス入りは普通の複層ガラスよりも断熱性能が優れるということですが、実際どんなメリットがあるのか最初はその違いが全くわからなかったのですが、セルコホームの展示場にてスタッフの方に実物でご説明して頂きました。
その体験キットには普通の1枚ガラス・ペアーガラス・アルゴンガス入りペアガラスの3種類が貼られ、白熱球の発する熱の透過具合を各ガラス越しに体験できました。
1枚ガラスとペアガラスは遮熱効果が感じられず、ガラス越しにかざした手のひらにそのまま熱が伝わって来たのですが、アルゴンガス入りの複層ガラスは白熱球の熱が5分の1くらいに低下し、手をかざしてもほとんど熱が気にならないレベルになってしまいました。
いやいや~、さすがにこれはちょっと驚きました。
恐らく、真夏の太陽光や、西日の入る15時以降は絶大な効果を発揮するほか、結露の発生にも差があるのではないかと思います。
『結露』と言えば絶対忘れてはいけないのが、窓枠(サッシ)の素材ですね。
せっかくのペアーガラスになっていても、窓枠はアルミだったりすると奥様念願の『結露対策』の夢は一気に総崩れしちゃいます。
建て売り・分譲の戸建てや、マンションを買うならどうしようもできないので諦めるしかありませんが、折角これから家を建てるなら、アルミサッシは完全撤廃の方向で検討してみてはいかがでしょうか。
一般的に窓枠に採用される『アルミ』は熱の伝導効率が高いので、窓枠自体が夏は日射によって熱く、冬は外気によって冷たくなってしまいます。
そのため、『結露』が生じやすくなるので、折角の新居でもまた『結露』と同居するハメに。
ログハウスやスウェーデンハウスなどは木製の窓枠のため結露が生じにくいのですが、木は伸縮性があり狂いが生じたりもしますから、もちろん万能ではないです。
加えて、外国製サッシの場合は、ガラスが割れた時や窓枠が壊れた時、迅速で柔軟な対応を望むのは難しいので有事のリスク管理も必要です。
なので、今のところオススメは国内生産の樹脂製サッシかも知れませんね。
熱の伝導効率が低いため結露しにくく、凍結もしにくいほか、伸縮・変形もしにくいので雪が積もる極寒エリアでも安心して使えるそうです。
樹脂製の窓枠にLow-Eガラス&アルゴンガス&トリプルガラス仕様であれば最強バージョンなのかも知れませんが、費用を伴うのでウチの場合は手が届かずって感じです・・・。
ウチは妻が『寒いのと結露は絶対ヤダ』と当初より仰っていましたので、遮熱(断熱)効果のあるLow-Eガラスと樹脂製サッシュの組み合わせなら取りあえず合格です。
工房アヤの輸入住宅『虹の家』はプランによって仕様が異なるので事前にご確認を↓
http://www.koboaya.co.jp/
ちなみに、ウチのプランは『工房AYA・虹の家・長期優良住宅』ですがオプションをちょこちょこ入れたので『虹の家・DXタイプ』の仕様にも少し共通の仕様です。
工房アヤ『虹の家』のセミオーダーシステムなので、ローコストながらも柔軟に対応して頂いています。
『いい家が欲しい』と思う人が多いと思いますが、『いい家』と『ローコスト』を両立するためのハウスメーカー・工務店・建設会社・設計事務所・建築事務所探しというのは結構大変なんですよね。

